Floorplan of the Abbey

In medieval times the Abbey buildings covered a large area. The gardens that surround the Abbey today contain the remains of the cloisters and are the site of the old Abbey church. (The picture above is of excavations made in 1925)
![]() |
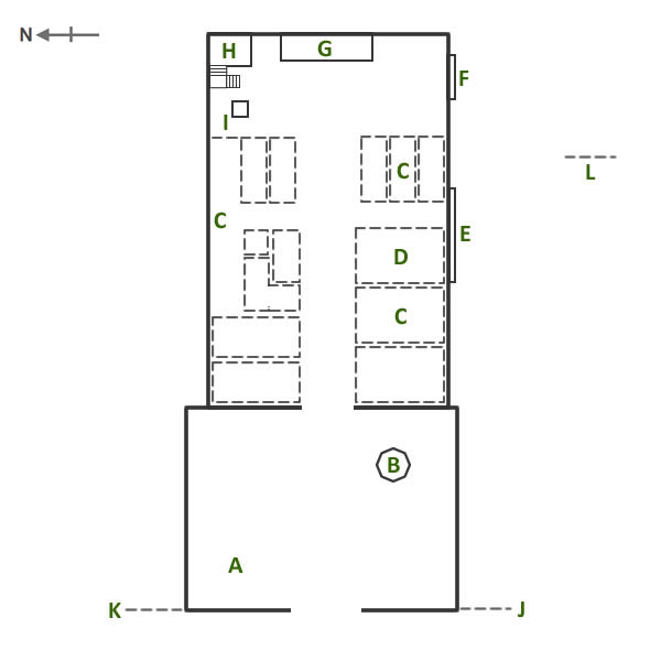
Floorplan Key A: The Tower B: Font C: Box Pews D: The Old Manorial Pew E: South Window F: Memorial G: Altar H: Pulpit I: Psalm Board J: Gothic Arch K: Romanesque Arch L: Site of Cloisters |
